233myoko-0 | Sumai リゾート

地域選択

コンテンツへ移動
  • 当サイトの使い方
  • 無料掲載方法
  • お気に入り物件リスト

Sumai リゾート

全国のログハウス・別荘など中古リゾート物件情報

Sumai リゾート > 233myoko-0

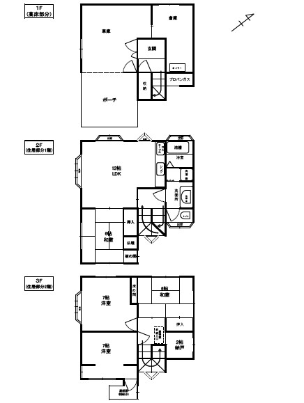
233myoko-0

投稿日: 2020年10月20日 @ 436 × 579 | 233myoko-0
← 前へ
次へ →
コメント・トラックバックは受け付けていません。

当サイトの使い方 | 無料物件掲載方法 | 運営 | サイトマップ | プライバシーポリシー
(C) Sumai事務局