25shimoda-0 | Sumai リゾート
検索:
地域選択
コンテンツへ移動
当サイトの使い方
無料掲載方法
お気に入り物件リスト
Sumai リゾート
全国のログハウス・別荘など中古リゾート物件情報
Sumai リゾート
>
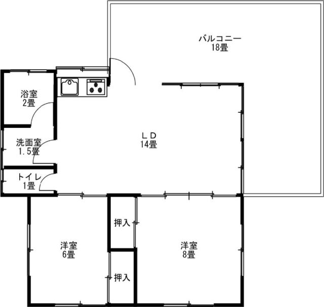
25shimoda-0
25shimoda-0
投稿日:
2022年1月6日
@
640 × 607
|
25shimoda-0
←
前へ
次へ
→