| 物件種別 | 売買(建物・土地) | ||
| 売買価格 | 750万円 | ||
| 賃貸価格 | |||
| 物件所在地 | 新潟県東蒲原郡阿賀町両郷 | ||
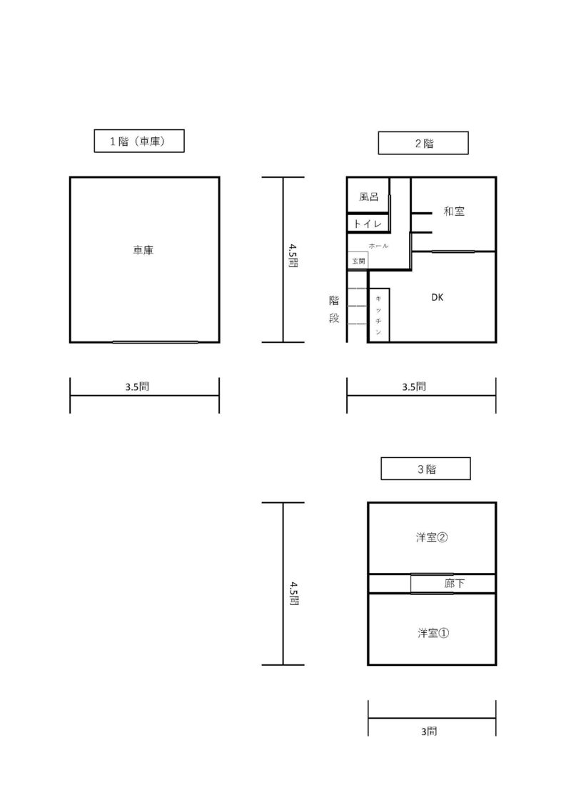
| 建物-構造 | 木造, RC3階建 | 建物-築年月 | 平成13年建 |
| 建物-面積 | 153.19㎡ | 建物-間取 | 3DK |
| 土地-面積 | 426㎡ | 土地-地勢 | |
| 建ぺい率 | 容積率 | ||
| 土地-地目 | 土地-権利 | ||
| 土地-用途地域 | 土地-都市計画 | ||
| 土地-接道 | |||
| 駐車場 | 車庫1台分、その他敷地内に複数台駐車可能 | ||
| 交通 | |||
| 生活環境 | |||
| 設備-電気 | 設備-給湯 | ||
| 設備-水道 | 公営水道 | 設備-排水 | |
| 設備-トイレ | 洋式水洗トイレ | ||
| 増築・リフォーム歴 | |||
| 補修必要程度 | 補修費負担 | ||
| 補修必要内容 | |||
| 利用状況 | |||
| 付帯物件・その他 | 車庫 | ||
| 管理費・自治会費・税金等 | |||
| 敷金・礼金・仲介手数料等 | |||
| 特記事項 | |||
| 備考 | 別荘として使用されていた物件です。1階部分が車庫、物件入口には消雪パイプも設置しているため降雪時も安心です。 高床式で1階鉄筋コンクリート部分は車庫になっています。 物件の入口には、消雪パイプを設置しています。 ※下記空き家バンクURLより、物件確認とお問合せをお願いいたします。 |
||
| 参照URL | 自治体ホームページ | ||
| 物件番号 | 空き家バンク物件 上-空き家23 | ||
| 取引態様 | |||
| 事業者名(お問合せ先) | |||
| 事業者所在地 | |||
| 事業者連絡先 | |||
| 掲載日/更新日 | 2025年10月28日 | 2025年12月13日 | |
| 直通メールフォーム | |||
![]()





