| 物件種別 | 売買(建物・土地) | ||
| 売買価格 | 300万円 | ||
| 賃貸価格 | |||
| 物件所在地 | 宮城県柴田郡川崎町 | ||
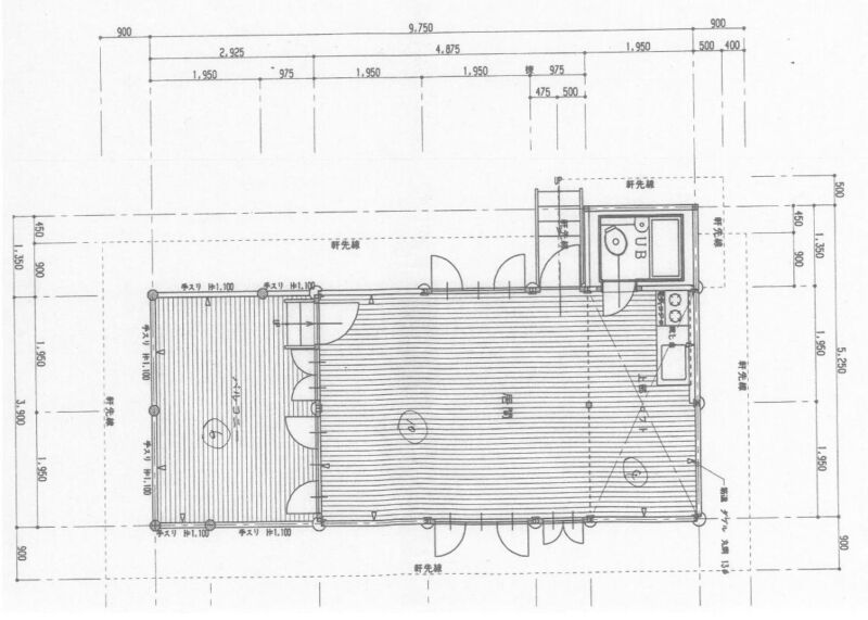
| 建物-構造 | 木造平屋 | 建物-築年月 | |
| 建物-面積 | 48.27㎡ | 建物-間取 | |
| 土地-面積 | 219㎡ | 土地-地勢 | |
| 建ぺい率 | 容積率 | ||
| 土地-地目 | 土地-権利 | ||
| 土地-用途地域 | 土地-都市計画 | ||
| 土地-接道 | |||
| 駐車場 | 有 | ||
| 交通 | |||
| 生活環境 | 役所12km スーパー12km コンビニ10km 小学校8km 中学校13km | ||
| 設備-電気 | 電気 | 設備-給湯 | プロパンガス |
| 設備-水道 | 設備-排水 | 浄化槽 | |
| 設備-トイレ | 洋式水洗トイレ | ||
| 増築・リフォーム歴 | |||
| 補修必要程度 | 中規模 | 補修費負担 | 入居者 |
| 補修必要内容 | |||
| 利用状況 | 別荘利用 | ||
| 付帯物件・その他 | ロフト, ウッドデッキ | ||
| 管理費・自治会費・税金等 | 別荘管理費¥36,000/年 | ||
| 敷金・礼金・仲介手数料等 | |||
| 特記事項 | ・温泉権なし・地階に倉庫あり ※ライフライン設備開栓・開通状況によっては、確認できない設備がある為、修繕が必要な可能性があります。 | ||
| 備考 | ※下記空き家バンクURLより、物件確認とお問合せをお願いいたします。 |
||
| 参照URL | 自治体ホームページ | ||
| 物件番号 | 空き家バンク物件 157(青45) | ||
| 取引態様 | |||
| 事業者名(お問合せ先) | |||
| 事業者所在地 | |||
| 事業者連絡先 | |||
| 掲載日/更新日 | 2025年11月30日 | 2025年11月30日 | |
| 直通メールフォーム | |||
![]()



