| 物件種別 | 売買(建物・土地) | ||
| 売買価格 | 670万円 | ||
| 賃貸価格 | |||
| 物件所在地 | 広島県廿日市市中道字板押(らかんの里) | ||
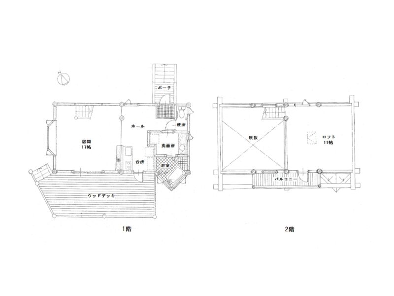
| 建物-構造 | 木造2階建 | 建物-築年月 | 1997年1月 |
| 建物-面積 | 63.39㎡ | 建物-間取 | 1LDK |
| 土地-面積 | (公簿)624㎡ | 土地-地勢 | |
| 建ぺい率 | 容積率 | ||
| 土地-地目 | 土地-権利 | ||
| 土地-用途地域 | 土地-都市計画 | ||
| 土地-接道 | 一方 | ||
| 駐車場 | 5~6台 | ||
| 交通 | 道の駅スパ羅漢より車で15分(7,100m) | ||
| 生活環境 | |||
| 設備-電気 | 設備-給湯 | プロパンガス | |
| 設備-水道 | 井戸 | 設備-排水 | 浄化槽 |
| 設備-トイレ | 洋式水洗トイレ | ||
| 増築・リフォーム歴 | |||
| 補修必要程度 | 補修費負担 | ||
| 補修必要内容 | |||
| 利用状況・空き家歴 | 空き家になった時期:2016年頃 | ||
| 付帯物件・その他 | バルコニー, ウッドデッキ | ||
| 管理費・自治会費・税金等 | 管理費:3万円/年 月々の水道代無料 | ||
| 敷金・礼金・仲介手数料等 | |||
| 特記事項 | |||
| 備考 | ・土砂災害警戒区域外 ※下記空き家バンクURLより、物件確認とお問合せをお願いいたします。 |
||
| 参照URL | 自治体ホームページ | ||
| 物件番号 | 空き家バンク物件 中道字板押(らかんの里) | ||
| 取引態様 | |||
| 取扱事業者(お問合せ先) | |||
| 掲載日/更新日 | 2026年4月21日 | 2026年4月21日 | |
| 直通メールフォーム | |||
![]()

















