342myoko-01 | Sumai リゾート

地域選択

コンテンツへ移動
  • 当サイトの使い方
  • 無料掲載方法
  • お気に入り物件リスト

Sumai リゾート

全国のログハウス・別荘など中古リゾート物件情報

Sumai リゾート > 342myoko-01

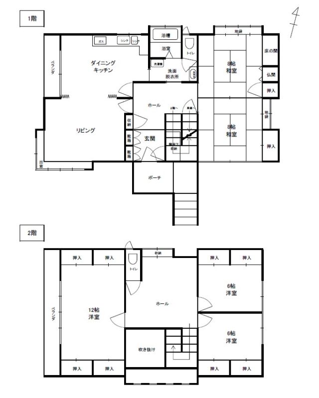
342myoko-01

投稿日: 2022年10月24日 @ 640 × 799 | 342myoko-01
← 前へ
次へ →
コメント・トラックバックは受け付けていません。

当サイトの使い方 | 無料物件掲載方法 | 運営 | サイトマップ | プライバシーポリシー
(C) Sumai事務局